Wall Mounting Enclosure (IP65)

Single door

Double door

Plexiglass door

Inner door

Inner door
CR Series
Classification models
-
Note:
- Optional of Canopy
- Double door min. size for 600x800x200
- Plexiglass door min. size for 400x300x200
- Inner door min. size for 400x300x200
- Plexiglass door and inner dorr min. size for 700x500x250
Feature
- Made of high quality steel sheet.
- Surface finished with Polyester powder coating.
- Double folded gutter at door frame to increase rigidity and prevent water from entering while door is opened.
- 4 fixing holes for direct wall mounting or using alternative mounting brackets.
- Concealed hinges provide 130 deg. door opening.
- Inner door and plexiglass door.
- 4 welded studs for fixing mounting plate.
- Earthing facilities on door, body and mounting plates.
- Polyurethane one piece gasket on door panel provides continuous seal.
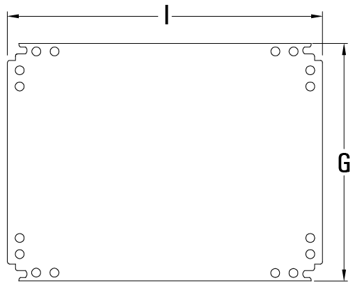
References and details of enclosures
| External size(mm) | No.of lock | Gland Opening | Mounting Plate | |||
| H | W | D | I | G | ||
| 200 | 200 | 150 | 1 | O | 165 | 150 |
| 250 | 200 | 150 | 1 | O | 215 | 150 |
| 250 | 250 | 150 | 1 | A | 215 | 200 |
| 300 | 200 | 150 | 1 | O | 265 | 150 |
| 300 | 250 | 150 | 1 | A | 265 | 200 |
| 300 | 300 | 150 | 1 | B | 265 | 250 |
| 300 | 400 | 150 | 1 | B | 265 | 350 |
| 400 | 300 | 150 | 1 | B | 365 | 250 |
| 400 | 400 | 150 | 1 | B | 365 | 350 |
| 500 | 300 | 150 | 1 | B | 465 | 250 |
| 500 | 400 | 150 | 1 | C | 465 | 350 |
| 500 | 500 | 150 | 1 | D | 465 | 450 |
| 600 | 400 | 150 | 2 | C | 565 | 350 |
| 600 | 500 | 150 | 2 | D | 565 | 450 |
| 300 | 250 | 200 | 1 | A | 265 | 200 |
| 300 | 300 | 200 | 1 | B | 265 | 250 |
| 300 | 400 | 200 | 1 | B | 265 | 350 |
| 400 | 300 | 200 | 1 | B | 365 | 250 |
| 400 | 400 | 200 | 1 | B | 365 | 350 |
| 400 | 600 | 200 | 1 | D | 365 | 550 |
| 500 | 300 | 200 | 1 | B | 465 | 250 |
| 500 | 400 | 200 | 1 | B | 465 | 350 |
| 500 | 500 | 200 | 1 | D | 465 | 450 |
| 600 | 400 | 200 | 2 | C | 565 | 350 |
| 600 | 500 | 200 | 2 | D | 565 | 450 |
| 600 | 600 | 200 | 2 | D | 565 | 550 |
| 700 | 500 | 200 | 2 | D | 665 | 450 |
| 700 | 600 | 200 | 2 | D | 665 | 550 |
| 800 | 600 | 200 | 2 | D | 765 | 550 |
| 800 | 800 | 200 | 2 | E | 765 | 750 |
| 1000 | 600 | 200 | 2 | D | 965 | 550 |
| 1000 | 800 | 200 | 2 | E | 965 | 750 |
| 1200 | 600 | 200 | 2 | D | 1165 | 550 |
| 1200 | 800 | 200 | 2 | E | 1165 | 750 |
| 400 | 400 | 250 | 1 | C | 365 | 350 |
| 400 | 600 | 250 | 1 | D | 365 | 550 |
| 500 | 400 | 250 | 1 | C | 465 | 350 |
| 500 | 500 | 250 | 1 | D | 465 | 450 |
| 600 | 400 | 250 | 2 | C | 565 | 350 |
| 600 | 500 | 250 | 2 | D | 565 | 450 |
| 600 | 600 | 250 | 2 | D | 565 | 550 |
| 700 | 500 | 250 | 2 | D | 665 | 450 |
| 800 | 600 | 250 | 2 | D | 765 | 550 |
| 800 | 800 | 250 | 2 | E | 765 | 750 |
| 1000 | 600 | 250 | 2 | D | 965 | 550 |
| 1000 | 800 | 250 | 2 | E | 965 | 750 |
| 1200 | 600 | 250 | 2 | D | 1165 | 550 |
| 1200 | 800 | 250 | 2 | E | 1165 | 750 |
| 400 | 600 | 300 | 1 | D | 365 | 550 |
| 500 | 400 | 300 | 1 | C | 465 | 350 |
| 600 | 400 | 300 | 2 | C | 565 | 350 |
| 600 | 500 | 300 | 2 | D | 565 | 450 |
| 600 | 600 | 300 | 2 | D | 565 | 550 |
| 700 | 500 | 300 | 2 | D | 665 | 450 |
| 800 | 600 | 300 | 2 | D | 765 | 550 |
| 800 | 800 | 300 | 2 | E | 765 | 750 |
| 1000 | 600 | 300 | 2 | D | 965 | 550 |
| 1200 | 600 | 300 | 2 | D | 1165 | 550 |
| 1000 | 800 | 300 | 2 | E | 965 | 750 |
| 1200 | 800 | 300 | 2 | E | 1165 | 750 |
| 1400 | 800 | 300 | 3 | E | 1365 | 750 |
| 800 | 600 | 400 | 2 | D | 765 | 550 |
| 800 | 800 | 400 | 2 | E | 765 | 750 |
| 1000 | 600 | 400 | 2 | D | 965 | 550 |
| 1000 | 800 | 400 | 2 | E | 965 | 750 |
| 1200 | 600 | 400 | 2 | D | 1165 | 550 |
| 1200 | 800 | 400 | 2 | E | 1165 | 750 |
| 1400 | 800 | 400 | 2 | E | 1365 | 750 |
-
Note: Other size can customization.
Mounting Plate
![]() |
Gland Opening
![]() |
![]() |
![]() |
![]() |
![]() |
![]() |














